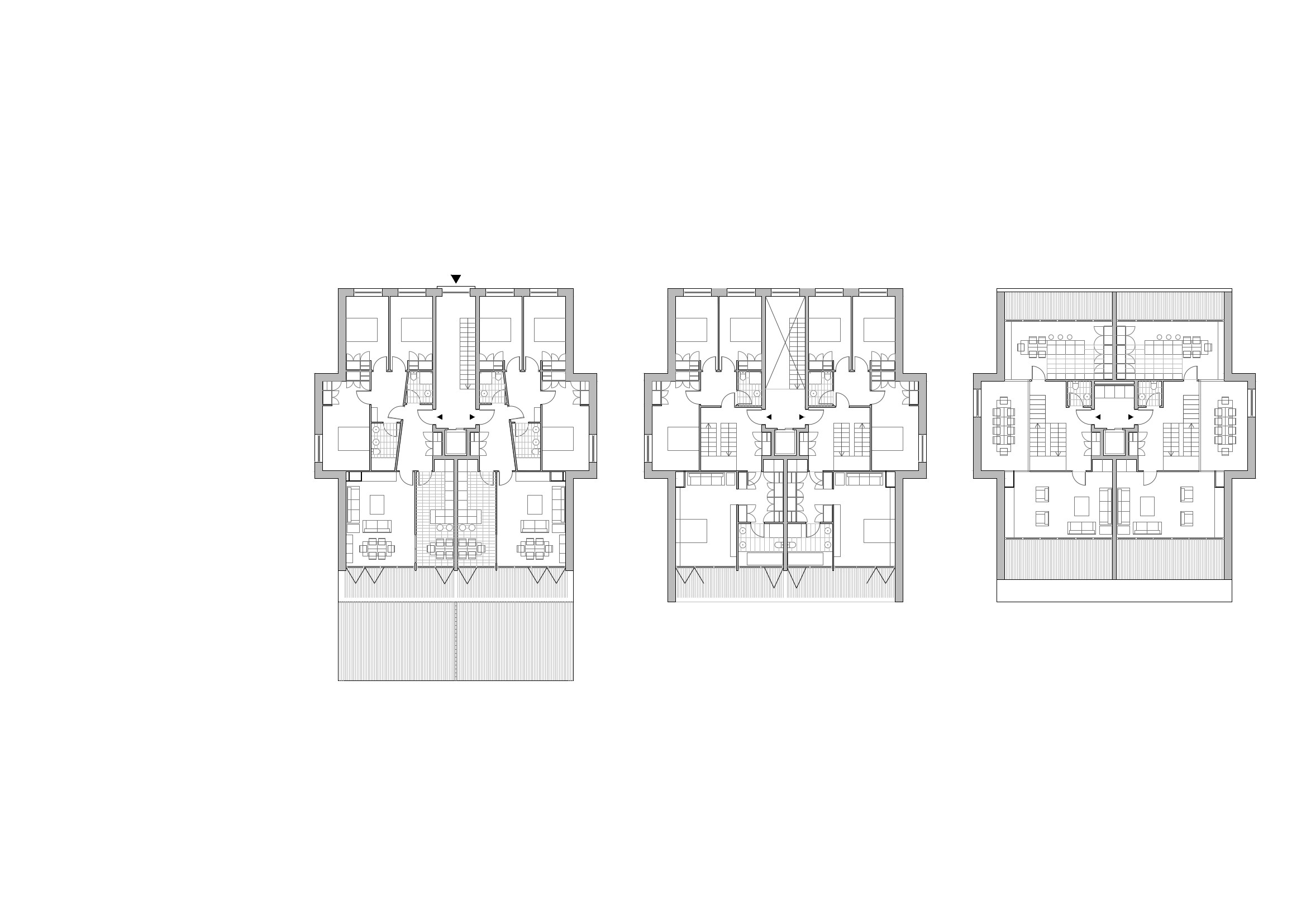
Joan Vicedo | ELB