Home
Projectes
Projectes pròpis
Projectes en col·laboració
Estudis
Perfil
Clients i Col·laboradors
Blog
Contacte
Hamburg
Alcoi
Home
Projectes
Projectes pròpis
Projectes en col·laboració
Estudis
Perfil
Clients i Col·laboradors
Blog
Contacte
Hamburg
Alcoi
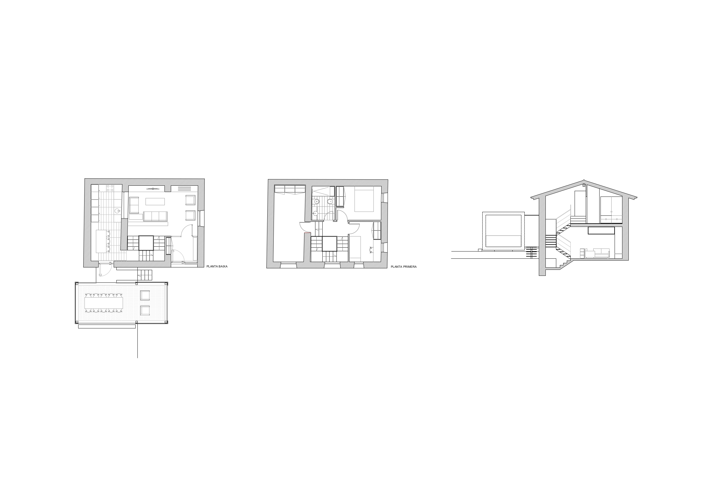
Joan Vicedo | TLM
TLM
Buildings
,
Project
,
Projecte propi
0